Joinville - Vila Nova

3 dormitórios (1 suíte)

1 vaga

3 banheiros

98,47 m² de área privativa

98,47 m² de área total

R$ 560.000,00

  aceita financiamento
Mais Informações via WhatsApp

Os preços, disponibilidades e condições de pagamento poderão ser alterados sem prévia comunicação.

  • Residencial Ivani da Cunha
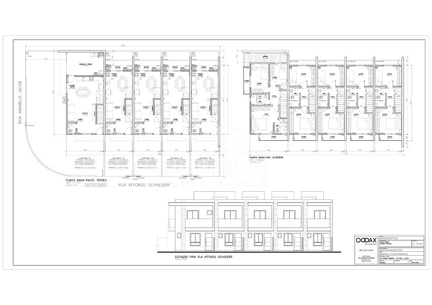
  • Oportunidade única de adquirir seu novo lar no Bairro Vila Nova. Se você está em busca de um espaço moderno, confortável e bem localizado, este Sobrado Geminado de Esquina é a escolha perfeita.
  • Com 98,47 metros quadrados de área privativa, ele foi projetado para oferecer funcionalidade e aconchego, atendendo às necessidades do dia a dia com qualidade e bom gosto.
  • O imóvel se destaca pela praticidade e pelo excelente padrão construtivo.
  • No térreo, o imóvel dispõe de um recuo de cinco metros na frente e na esquina, podendo ser utilizado como estacionamento e área para piscina. Internamente, conta com sala de estar, cozinha integrada, lavabo e garagem coberta. A área externa inclui churrasqueira a carvão e infraestrutura para instalação de eletrodomésticos.
  • No pavimento superior, a suíte casal com sacada garante privacidade, acompanhada por dois dormitórios, um deles com sacada, e um banheiro social.
  • A construção segue rigorosos padrões de qualidade, incluindo estrutura em concreto armado, acabamentos em porcelanato e instalações elétricas e hidráulicas conforme as normas vigentes. Tudo pensado para oferecer durabilidade, segurança e comodidade.
  • Não perca a chance de viver em um imóvel que une localização privilegiada e qualidade excepcional. Entre em contato para mais informações e agende uma visita. Seu novo lar espera por você.
  • Prazo de entrega Dezembro/2025